皆様こんにちは。
10月7日(月)に発売されましたモダンリビング特別編集『テーラーメイドの都市邸宅Vol.2』
ご覧いただけましたでしょうか。
ベルクハウスの魅力が詰まったフォトブックとなっております。
ぜひお近くの書店でお求めください。
さて今回は「プライベートリゾートのような住まい」<後編>をご紹介いたします。
施主様のご要望は以下の通りです。
・外から見えないプライベートが守られる空間
・プライベートバルコニー
・ゆったりとした洗面所と広いお風呂
・ゆとりのある広い玄関
・家族が集まるリビング
・将来的にセパレートにできる子供部屋
それでは3組の建築家の先生方によるコンペプランをご紹介いたします。
①GOOG建築設計室のプランです。

壁に囲われたパティオが玄関を開けた時にまず眼に飛び込んできます。
これによりお施主様希望の広々とした玄関ホールを視覚的にも演出。
また2階のパルコニーとも一体化させることで吹き抜けスペースも有効に活用するプランになりました。
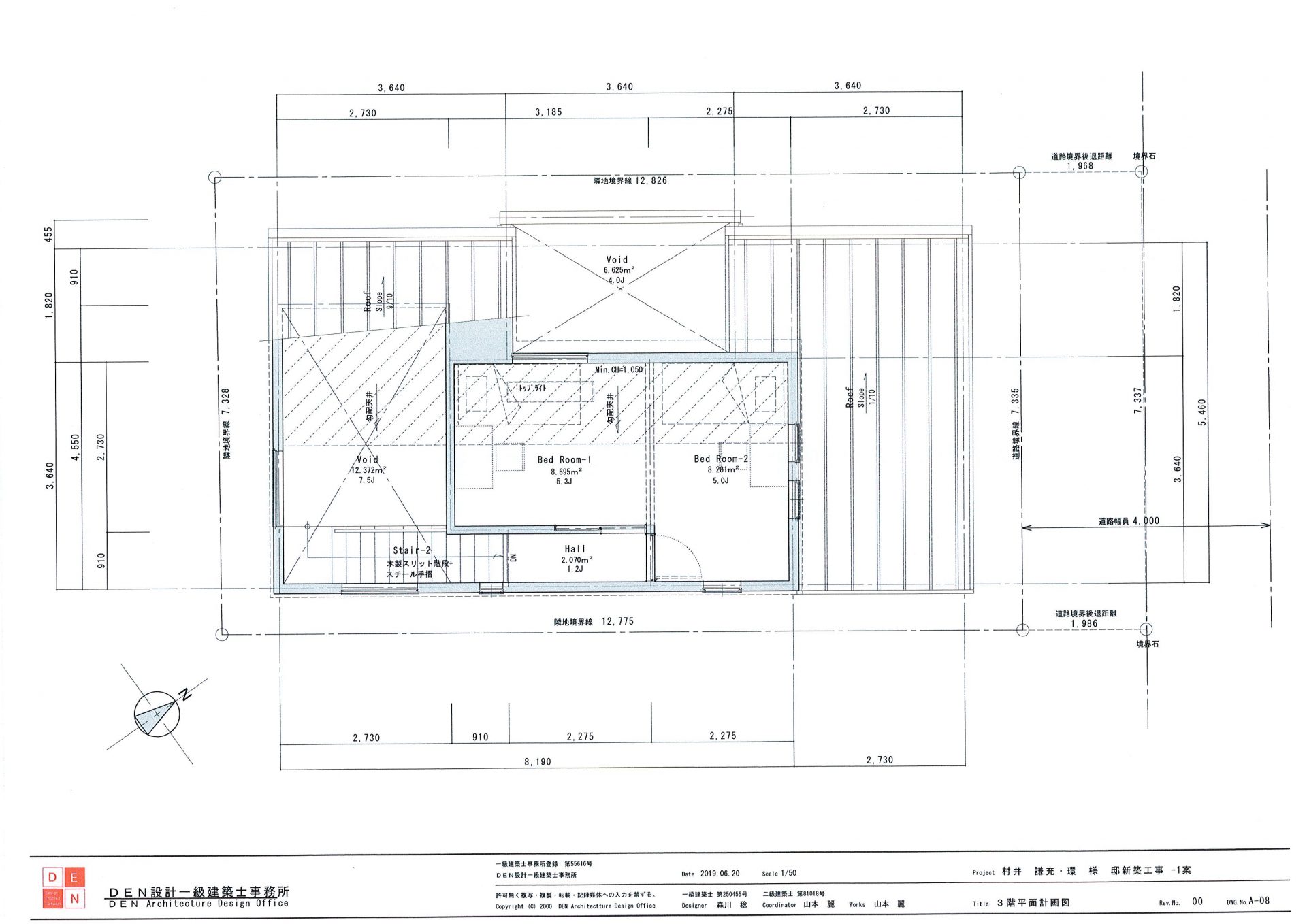
②DEN設計一級建築士事務所のプランです。

3階に将来独立可能な子供部屋を配置したプランです。
北側斜線の影響で高さの取りやすい位置に階段を設けたことにより1-2階、2-3階の階段が別れ、
居室までの導線にはリビングがあり、家族の会話が自然に生まれる導線となりました。
③松井大輔建築設計研究所のプランです。


3プランの中で唯一、2階建てプランとなりました。
お施主様のヒアリング内容は2階建てであっても実現できると建築家が判断した思い切った提案になります。
以上、3つのプランが出揃いました。
いかがでしたでしょうか?
ご覧のように、建築家それぞれがアイディアを考案し、全く異なるプランを提案してくださいました。
実際のコンペでは各先生、模型やパース・CG画像など使用し、分かりやすく提案して頂けます。家作りのイメージが湧きやすい点も建築コンペ方式のメリットの一つです。
ベルクハウスでは現在、建築コンペを無料で申し込めるモダンリビングムック本の発売記念キャンペーンを実施しております。この機会にぜひ、詳細をご覧ください。

気になる方は駒沢モデルハウスにご来場、またはお気軽に下記までお電話ください。
駒沢モデルハウス TEL:03-5760-6715
次回もお楽しみに!