さて、前回のつづきです。
2世帯住宅を建築家がデザインすると、このようになります。
今回、コンペに参加する建築家は以下の方々です。
アーネスト一級建築士事務所 小林先生
シミズアトリエ一級建築士事務所 清水先生
山崎壮一建築設計事務所 山崎先生
空創計画TTアトリエ一級建築士事務所 高橋先生
一人目の小林先生
大きな中庭を取り囲む2世帯住宅です。
外観は輸入住宅のテイストとなっています。





二人目の清水先生
小林先生と同様に中庭を取り囲む計画です。
2階のリビング上部の大きな吹き抜けが特徴です。






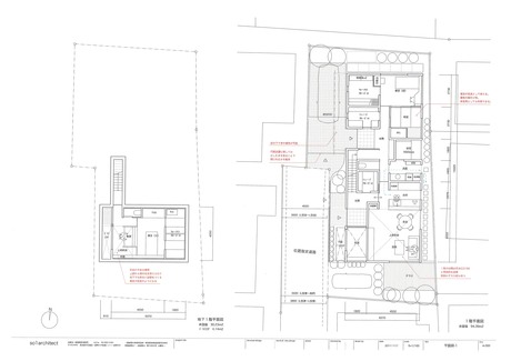
三人目の山崎先生
地下室に設けた書斎の上部が吹き抜けになっています。
また1階のリビングが吹き抜けとなっていて、2階のリビングの一部と交差しています。


四人目の高橋先生
南側にまとまった空間を取って庭があります。
外観が和風モダンのような落ち着いた雰囲気となっています。



以上の4プランが提案されました。
同じお客様の要望であっても、様々なプランができてくる。
これがコンペの良いところです。