みなさまこんにちは。
暖かい日が多くなり、花粉が多くつらい方もいらっしゃる半面
花が咲いたりと嬉しい春も感じる季節ですね。
今回は「通路の突き当りに作る快適な住まい 」
のコンペをご紹介してまいります。
まずは ①インターセクト一級建築士事務所 横川先生 のプランです。
ガラス張りの玄関ホールが印象的なプランです。
2階の浴室のバスコートは高い壁で囲まれていて、プライベート感が抜群です。
















次は、 ②一級建築士事務所ラスティック建築研究所 河野先生 のプランです。
建物と一体になった高い壁で囲まれたパティオが印象的です。
またLDKの上部は大きく吹き抜けていて、開放感が高い設計となっています。












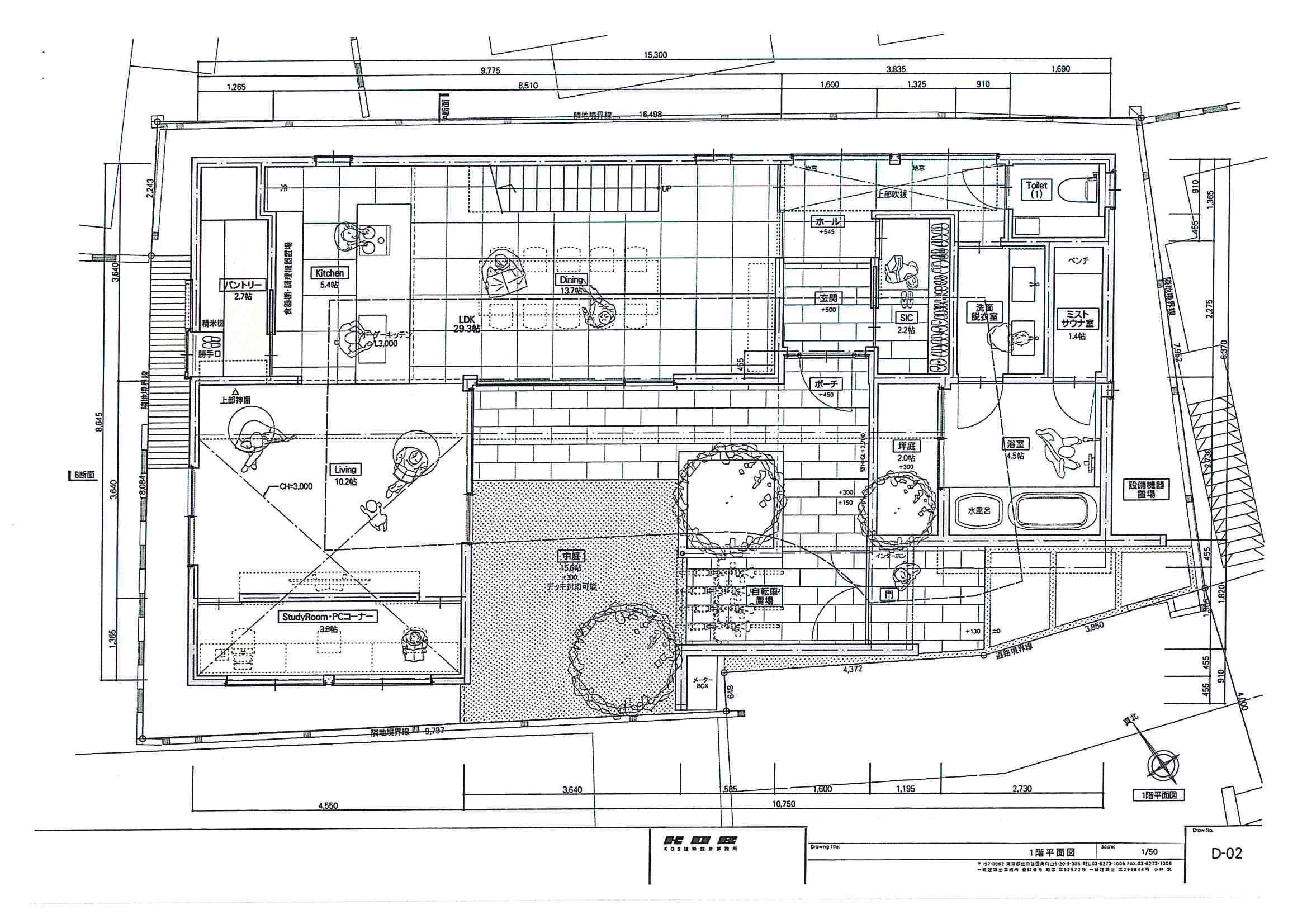
次は、 ③KOB建築設計事務所 小林先生 のプランです。
中庭を取り囲む部屋の配置になっています。
どの部屋からも庭を見ることができ、一体感が演出されます。








今回も様々なアイデアが出揃いました。
皆様はどのプランがお好きでしょうか?
次回もご期待ください。