皆様こんにちは。
梅雨に入り、街中では紫陽花がみられるようになりました。いかがお過ごしでしょうか?
さて今回は「SE工法で建てるモダンライクな住まい」<後編>をお送りいたします。
お施主様のご要望は以下の通りです。
・大空間が取れるSE工法
・石貼りのモダンな外観
・車が2台置けるビルトインガレージ
・リビングには暖炉を置きたい
・屋上庭園
・ホームエレベーター
それでは3名の建築家によるコンペプランをご紹介いたします。
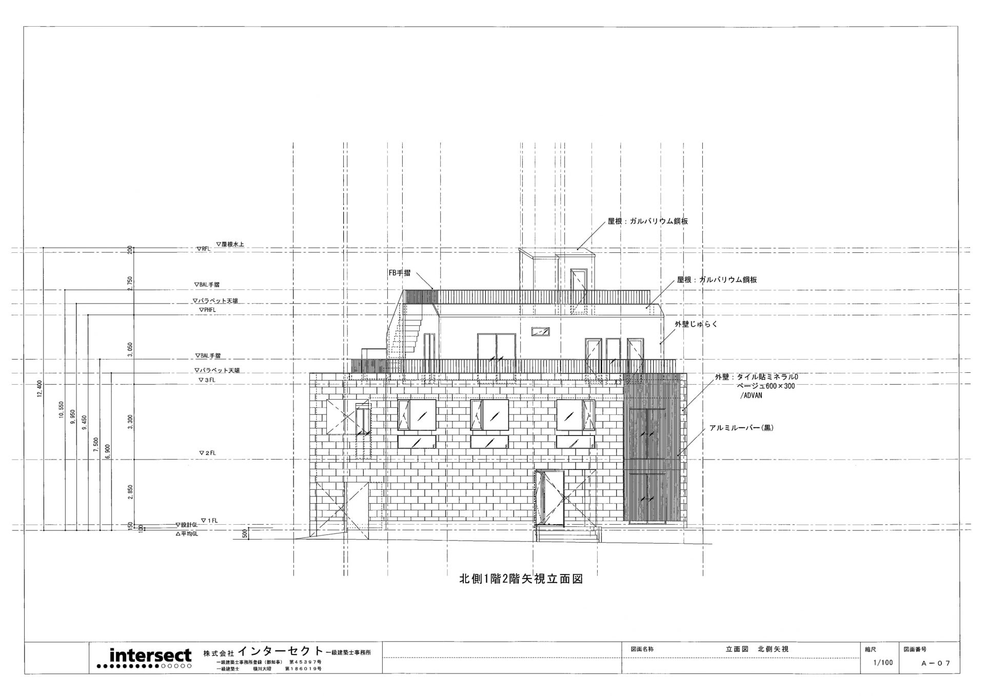
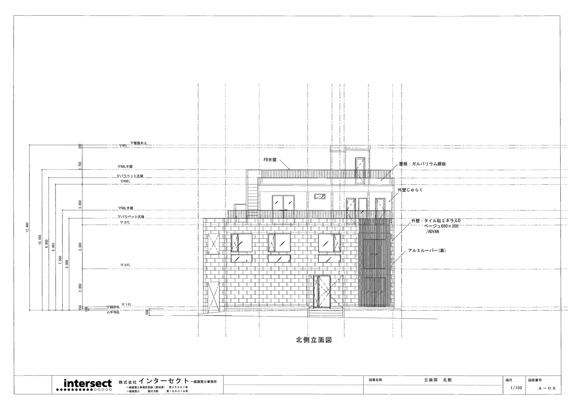
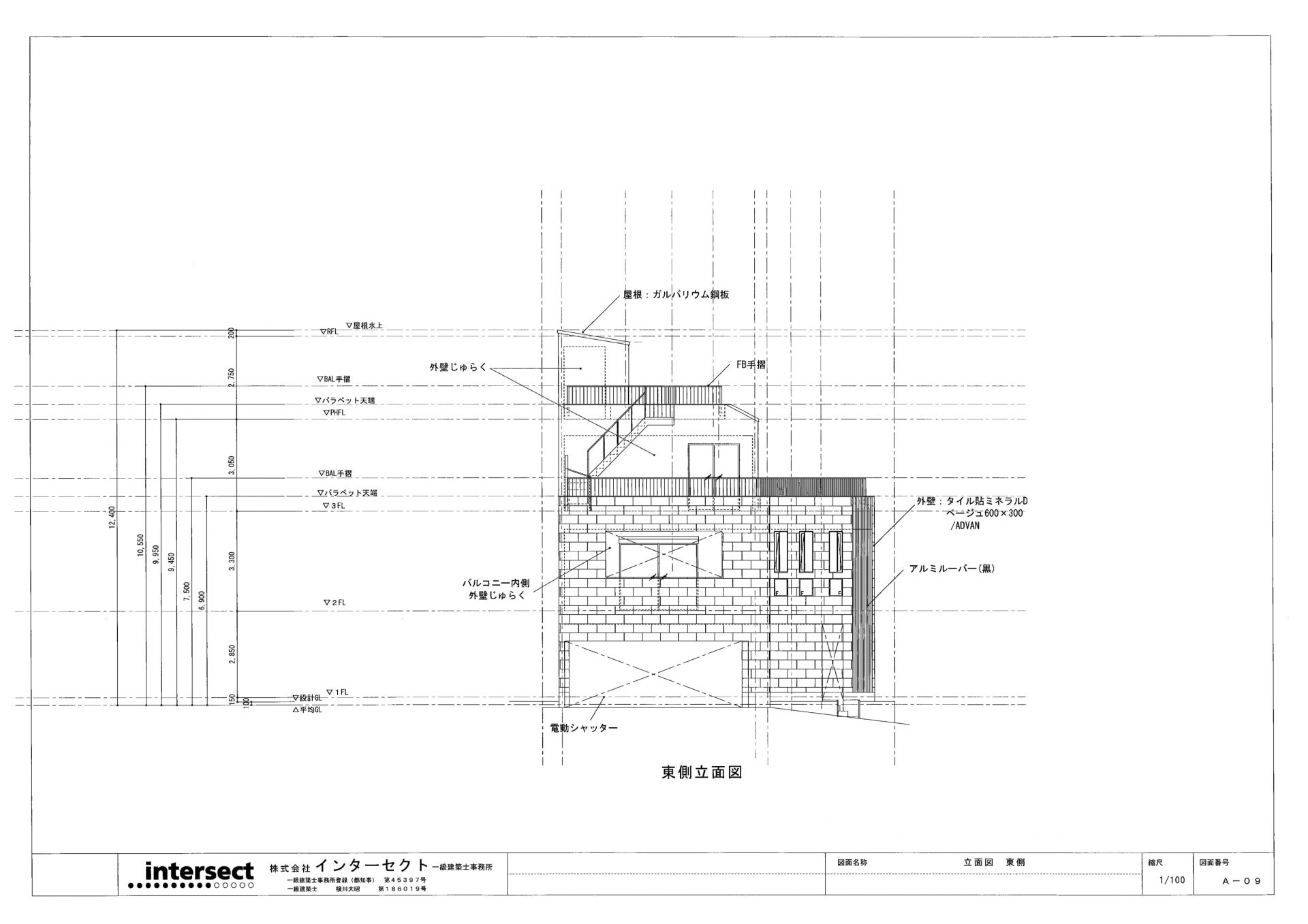
①株式会社インターセクト一級建築士事務所 横川先生
エントランスホールがとても印象的です。玄関を入ると各部屋への入り口やエレベーター・階段は見えないように工夫されており坪庭が真っ先に目に入ります。
LDKはどこにいても全体を見渡すことができます。オープンキッチンにすることによりご家族やお客様と会話を楽しみながら作業ができそうです。

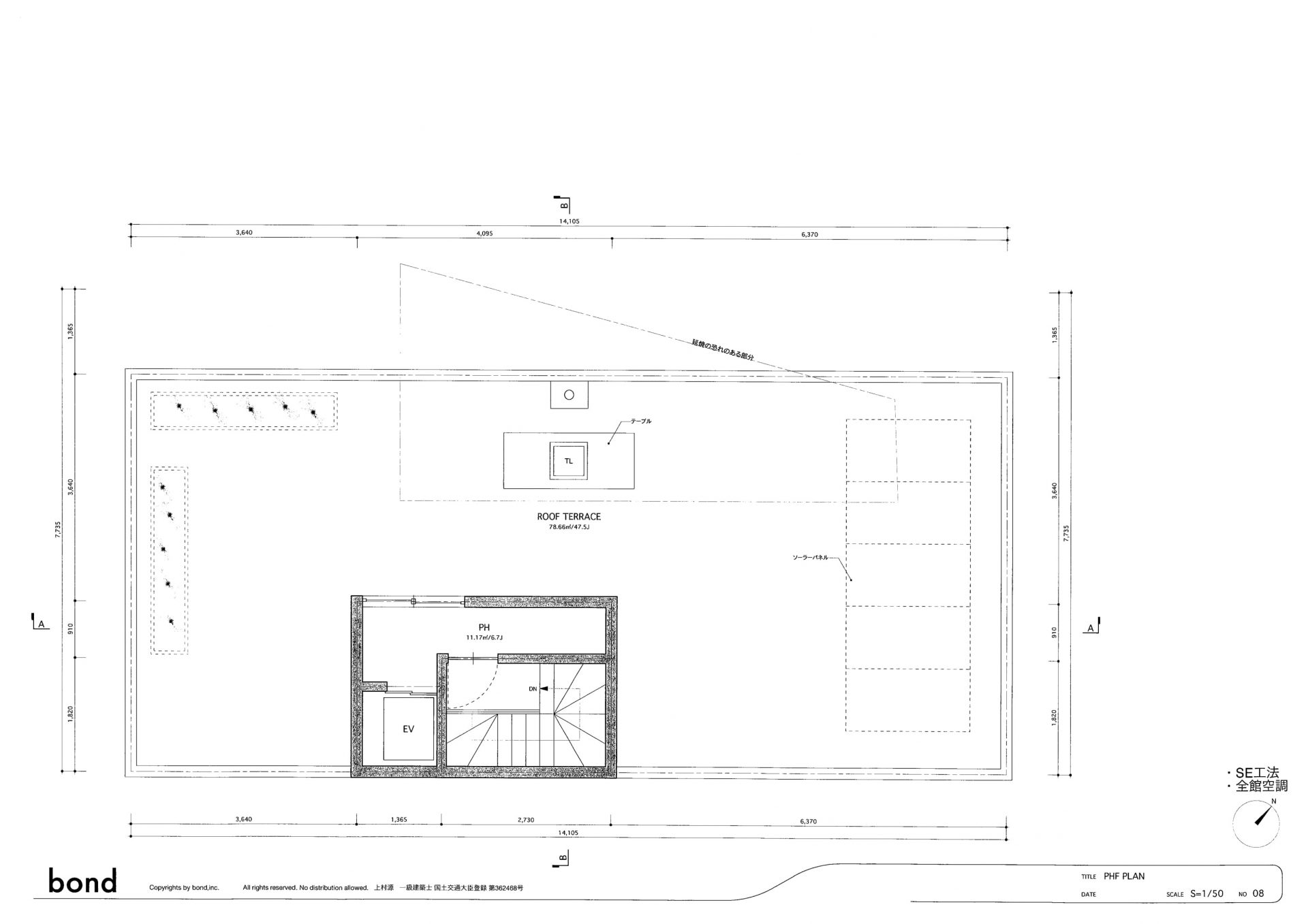
②株式会社bond 上村先生
ルーフテラスをかなり贅沢に設けています。ソーラーパネルを置いても十分な広さがあり屋上庭園として存分に活用できます。
B案は3台分のビルトインガレージを設けました。建物中央のガレージスペースはアプローチの役割も担っています。

③有限会社中尾英己建築設計事務所 中尾先生
リビングは上部が吹き抜けになっており、明るい光が差し込みます。バルコニーとも繋がっており開放感がありますが、目隠し壁でプライバシーはしっかりと守られています。
屋上庭園は屋上よりもさらに上った位置に設けています。ほかの空間とは仕切られ完全プライベートな庭として利用できます。

以上3つのプランが出揃いました。いかがでしょうか?
ベルクハウスではドローンを使用しての敷地撮影サービスを開始いたしました。建築コンペをご依頼のお客様や土地購入を検討されているお客様に2階、3階、屋上からの想定景観を撮影させていただきます。
ご興味がございましたら是非一度、駒沢展示場にお問い合わせ、ご来場ください!
次回はどんなプランが登場するのでしょうか?ご期待ください。