いよいよご提案ですが
再度・・・この度ご紹介する、コンペ実例は実に難易度「高」です。
・敷地がなだらかに傾斜している
・2種中高層住専
・準防火エリア
・高さ10M以下
・3階建てを希望かつビルトインガレージを希望
主な希望は
・母+ご夫婦+将来お子様の設計
・周囲に接する住まいが、ご親族の為、集える大きなホール(宴会など)
・木造
です。平均地盤面の取り方や。車の配置次第で大きく、内容が変わる難易度高い敷地とご要望です。
3層→4層になってしまいますと法規的にもかなり、ヘビーになりますので工夫が必須です。
①後藤先生
ひとつの建物を縦に二分断化した、実に考え抜いたプランだと言えます!
ガレージがある方は、ガレージ+2階建て
ガレージがない東側は、3階建てとしております。
部屋数も広さも申し分ないですが、少しコストが気になります。。。









②森川先生
車の配置を、思い切って道路沿い(縦列)にしています!
予想もしていませんでした。
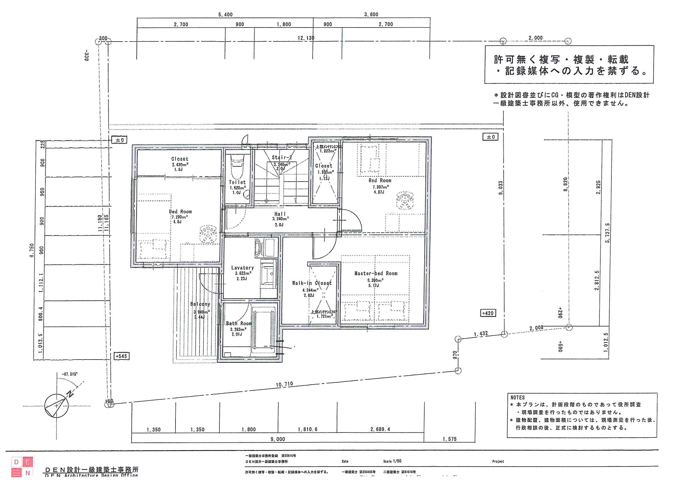
2階のバルコニーは、親族という、立地条件を活用して、二面大きく繋げています。気持ち良いですね。







③神田先生
シンプルisBest! コストも視野にいれた廊下もほとんど省略できているプランです。
3階のお風呂に隣接したテラスは最高に気持ち良いと思いました!
2階のリビングにテラスを付けても良さそうですね。






以上となります。
皆、優先順位を熟考し悩んだ結果だと感じました。本当にいつも難題を一生懸命考えてくださる
皆さまへ感謝感謝です。