皆様こんにちは。
先週日曜日は節分、今年も豆まきイベントが盛り上がっていましたね。
いかがお過ごしでしょうか。
さて、先週に引き続き今回は「限られた敷地を最大限活かした住まい」<後編>です。
施主様のご要望は以下の通りです。
・大容量のウォークインクローゼットがほしい
・ルーフテラスがほしい
・限られた敷地を最大限に活かしたい
・LDKを出来るだけ広く感じさせてほしい
それでは、3名の建築家の先生方のコンペプランをご紹介致します。
①イオンアーキテクツ 池田先生のプランです。
1・3階を居室、2階にLDK、PH階にルーフテラスを設けたプランです。
外観ファサード部分に樹木、西側の大胆に取った開口が印象的です。
また、LDKは一部吹抜けを設け、リビングとダイニング共に採光が入る開放感のある空間に仕上げました。
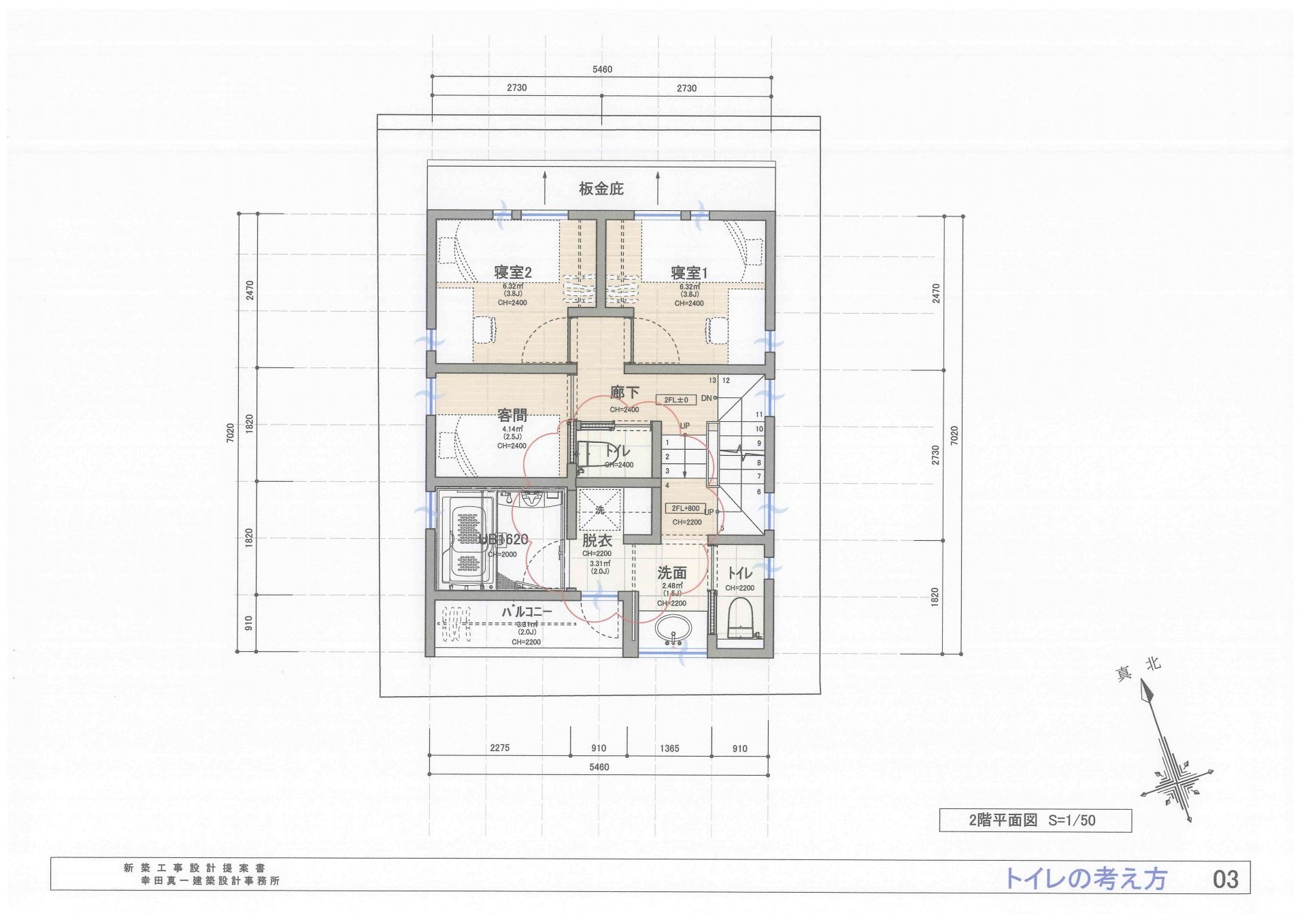
②幸田真一建築設計事務所 幸田先生のプランです。

1・2階を居室、3階にLDK+BARコーナー、PH階にルーフテラスを設けたプランです。
全体にスキップフロアを採用し、空間に奥行をもたらす工夫がされています。
限られた敷地でいかにスペースを広々使えるか、建築家ならではのこだわりが素敵です。
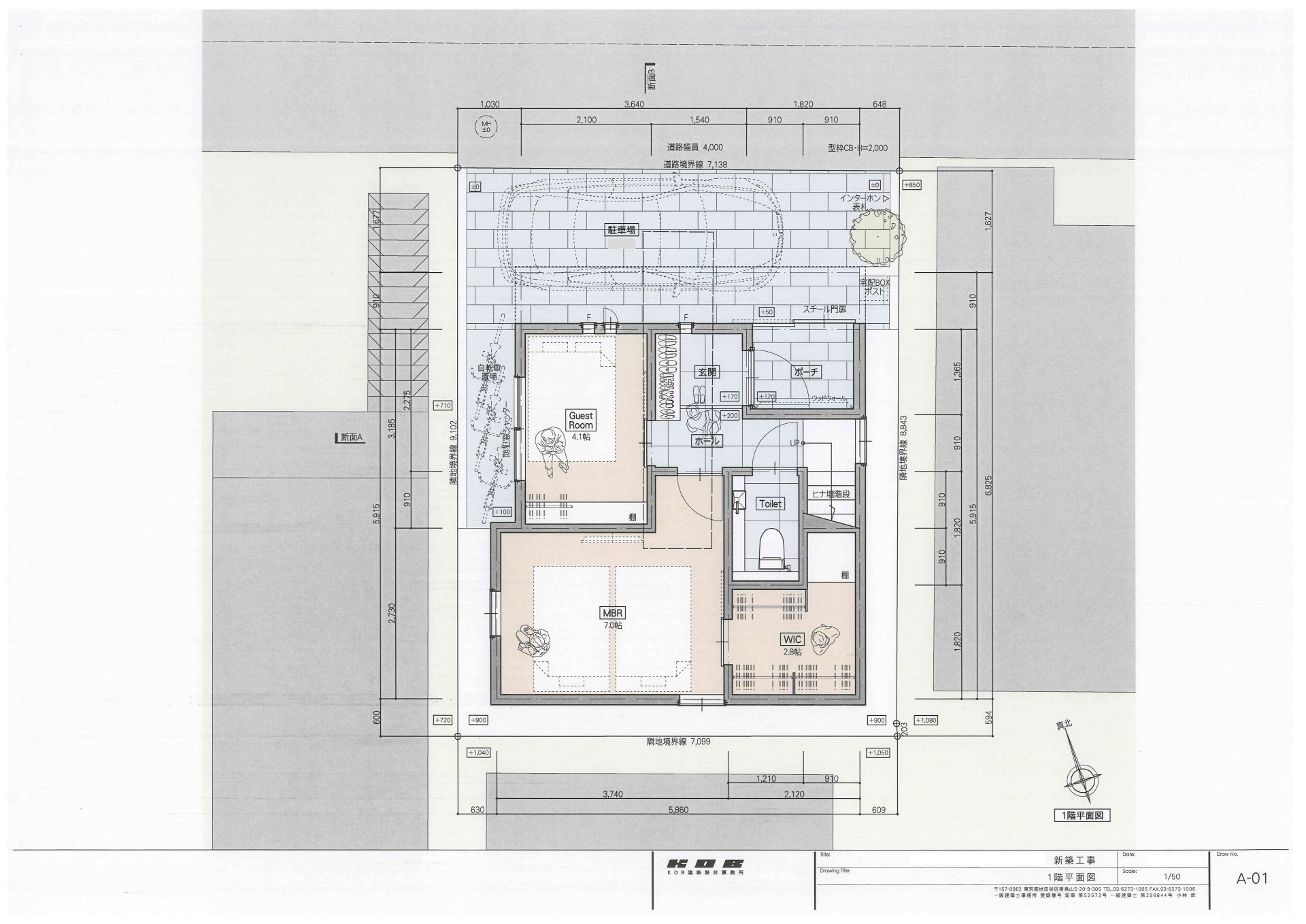
③KOB建築設計事務所 小林先生のプランです。
1・3階を居室、2階にリビング、PH階にルーフテラスを設けたプランです。
2階のLDKは、リビング一部を上部吹抜けとし、南側からの光が降り注ぐ気持ちの良い空間設計が魅力的です。
また、ガラス張りの階段室にしたスケルトン階段は、空間に抜け感をもたらすと同時にインテリアのオブジェにもなります。
以上、3つのプランが出揃いました。
いかがでしたでしょうか。
限られた敷地内でいかに広く感じられる住まいにするか、各先生様々なアイディアを提案されています。
このように建築コンペ方式では、こんな方法もあったのか!という驚きがあります。
ぜひ、気になる方はお気軽に下記までお電話ください。
駒沢モデルハウス TEL:03-5760-6715
次回もお楽しみに!