皆様こんにちは。
9月になり、少しずつ風が秋めいてきましたね。
いかがお過ごしでしょうか。
さて、今回は先週に引き続き「間口5m弱で叶える夢の住まい」<後編>をご紹介致します。
お客様のご要望は以下の通りです。
・抜け感のあるお洒落でかっこいい住まい
・居心地が良く、癒される空間
・犬との共生
・何よりも、屋上が欲しい
では、早速3名の建築家の先生方のコンペプランをご紹介致します。
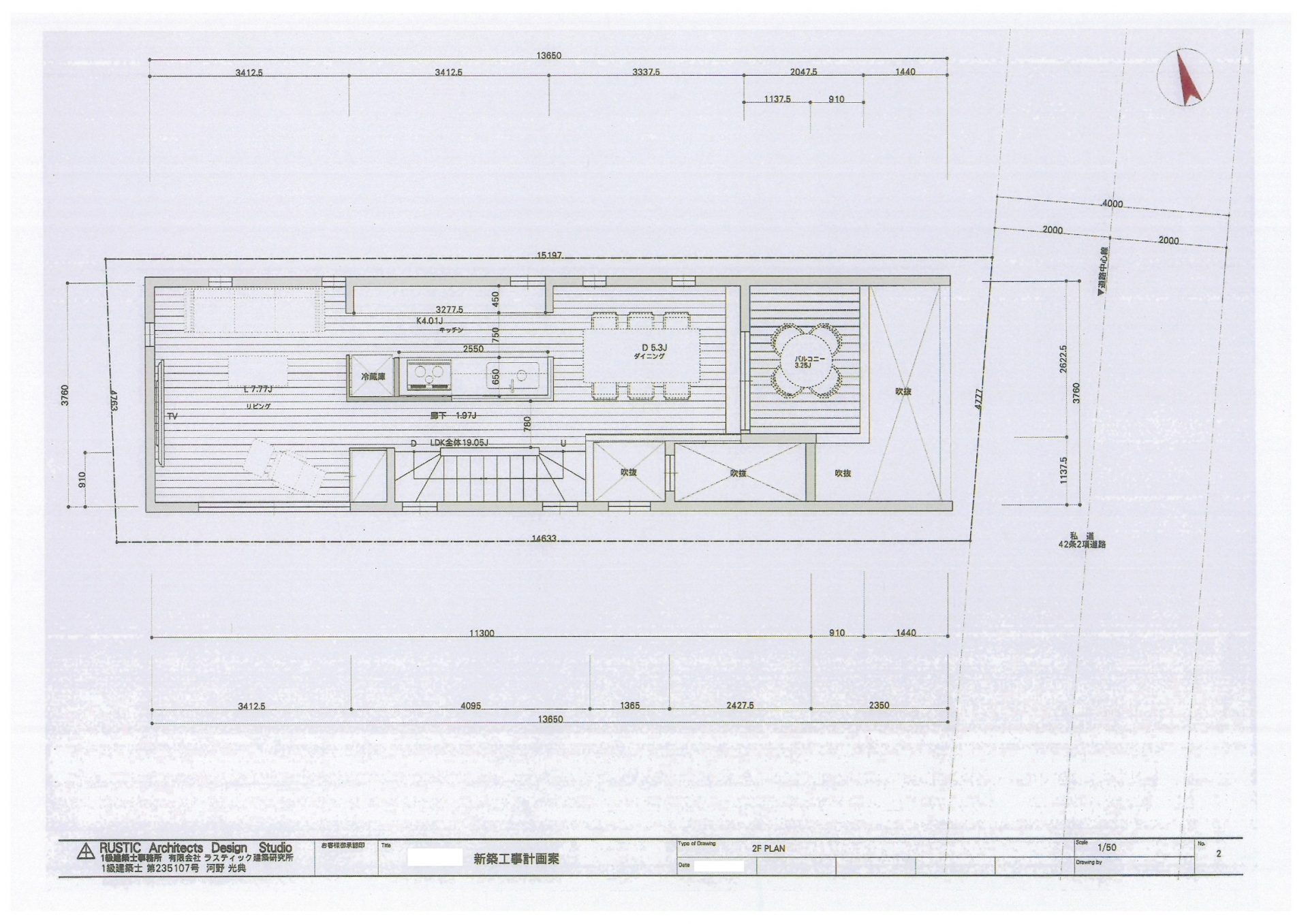
①ラスティック建築研究所 河野先生のプランです。









スキップフロアを上手に採用することで最大限の空間利用をしています。2階に約22帖のLDK+バルコニーを設け、ゆったり寛げる居心地の良い空間作りがされています。また、吹抜けやトップライトを設けることにより、明るく抜け感のある工夫が感じられます。
②STUDIO AK 吉田先生のプランです。






PLAN1











PLAN2











2プランのご提案です。
玄関・駐車場を地下に設けるプラン、1階に設けるプランです。
黒塗装でモダンな外観ですが、内部はナチュラルな雰囲気です。
バーベキューなど屋外を存分に楽しめそうな約11帖のルーフバルコニーも特徴的です。
③幸田真一建築設計事務所 幸田先生のプランです。









外観正面開口部にはルーバーを設け、プライバシーを守りつつ採光をリビングに入れる工夫がされています。3階はルーフテラス・セカンドリビング・書斎を設け、施主様が景色を楽しみながらリラックスできる空間が魅力的です。
以上、3つのプランが出揃いました。
いかがでしたでしょうか。
建築コンペ方式では図面だけでなく、模型やイメージ画像の提案もあり、先生方の様々なアイディアが出てきます。
次回もお楽しみに!