みなさまこんにちは。
お正月気分もそろそろ抜けて来た頃でしょうか?
寒い日が続きますね。
今回は「石張りの内装に拘ったホテルライクな家」<後編>です。
早速プランをご紹介して参ります。
まずは DEN設計一級建築士事務所 森川先生 のプランです。


次は イオンアーキテクツ 池田先生 のプランです。


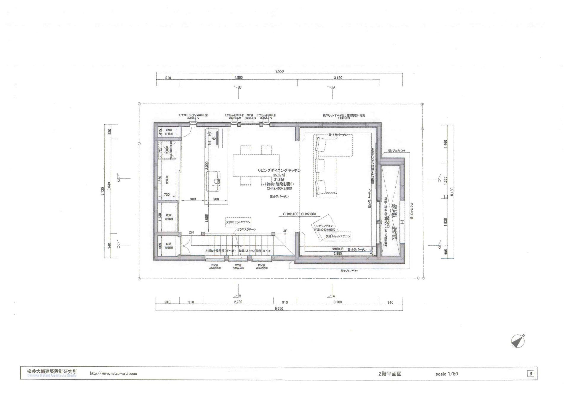
最後に、 松井大輔建築設計研究室 松井先生 のプランです。


様々なプランが出揃いました。
いかがでしたでしょうか?
また次回もお楽しみに!