みなさまこんにちは。
今日で11月も終わり、今年も残すところ1ヶ月ですね。
いかがお過ごしでしょうか。
今回は「石張りに拘った三階建ての家」<後編>です。
それでは早速ご紹介してまいります。
まずは DEN設計一級建築士事務所 森川先生 のプランです。


次は イオンアーキテクツ設計事務所 池田先生 のプランです。


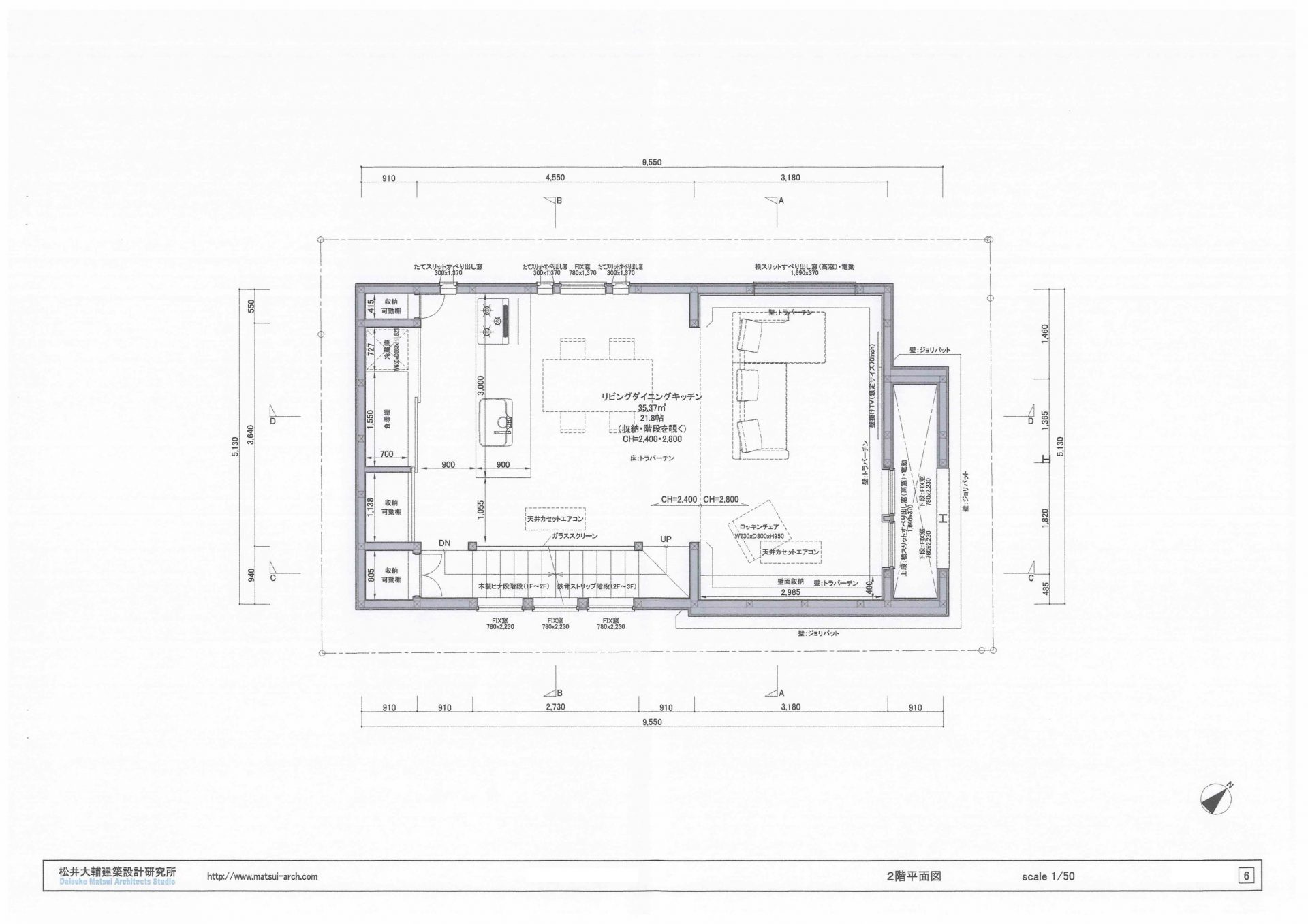
最後は 松井大輔建築設計研究所 松井先生 のプランです。


いかがでしたでしょうか?
今回も様々なプランが出揃いました。
次回もお楽しみに!