皆様こんにちは。
今日は春分の日、昼と夜の長さが同じ日だと言われていますが、
お出掛けの予定など、皆様いかがお過ごしでしょうか?
さて、今回は先週に引き続き「バスコートが象徴的な住まい」<後編>をご紹介いたします。
施主様のご要望は以下の通りです。
・玄関までの長いアプローチ
・重厚感があり、セキュリティの整った造り
・グレーや黒などシックな色づかい
・外観からは窓が少なく見えるが明るい室内
・全体のイメージはホテルライク
・リビングとダイニングはスキップフロアで区切られた空間
・天高のあるリビング
それでは、3名の建築家の先生方によるコンペプランをご紹介致します。
①遠藤誠建築設計事務所 遠藤先生のプランです。


施主様の要望にあった外観について、複数プランを提案していることが印象的ですね。
また、風致地区の規制緩和を目的とした緑地も効果的に活用されていますね。
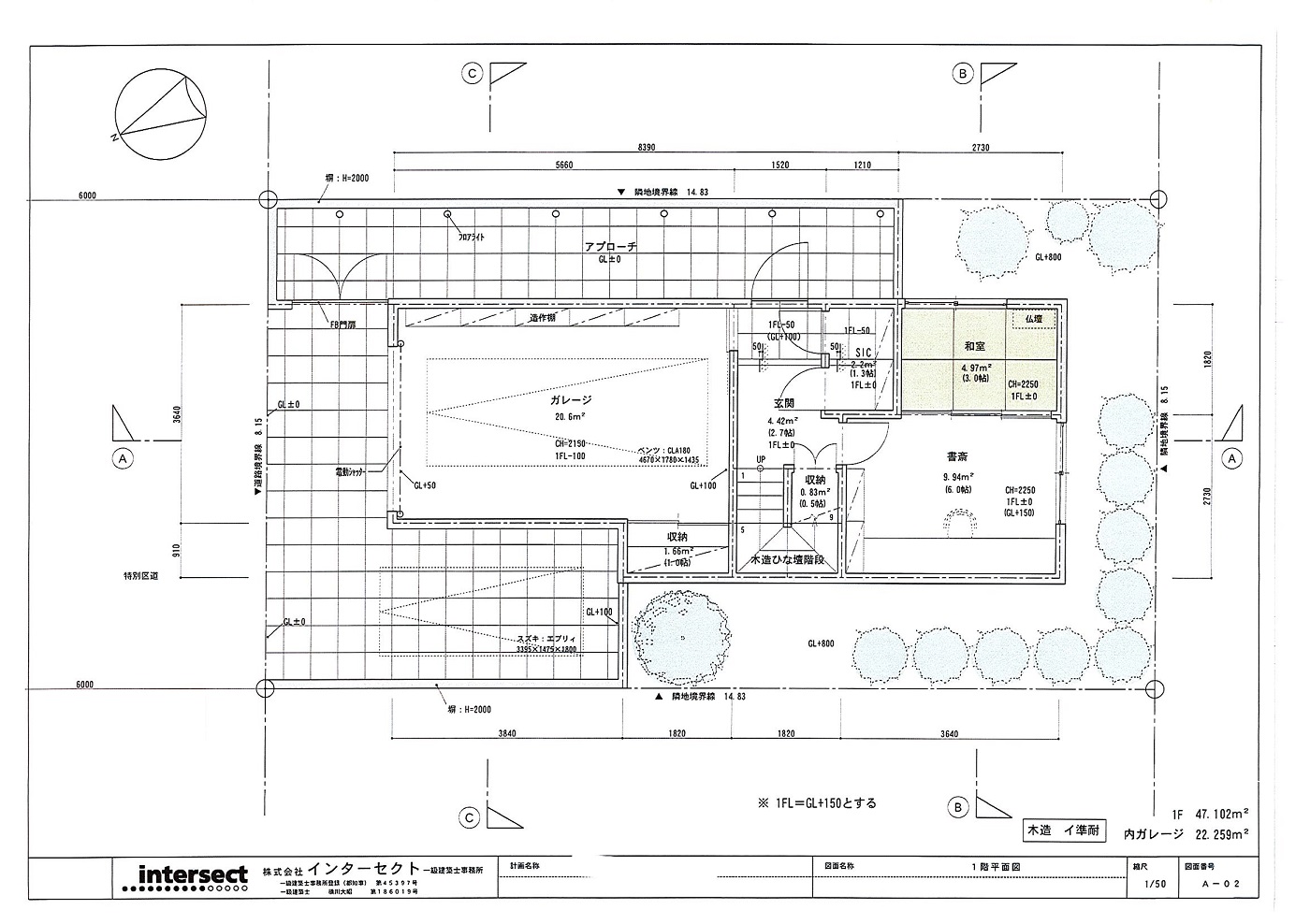
②インターセクト 横川先生のプランです。

石をふんだんに使った外観が目を惹きますね。
また3プランの中では唯一、玄関を東側に配置しました。
これにより東側に吹き抜けを設けることができ、朝日の取り込み方に工夫がこらされています。
③anot-DESIGN 松石先生 西田先生

リビングへ繋がる導線が特徴的ですね。
階段がリビングに繋がっていることにより、居室からも玄関からも導線がスマートに繋がっています。
以上、3つのプランが出揃いました。
いかがでしたでしょうか。
各先生、模型やパース・CG画像など使用し、分かりやすく提案して頂けます。
実際の家作りのイメージが湧きやすい点も建築コンペ方式のメリットの一つです。
是非、気になる方はお気軽に下記までお電話ください。
駒沢モデルハウス TEL:03-5760-6715
次回もお楽しみに!