COMPETITION REPORTS

「変形地に建つ賃貸併用住宅」<後編>

2019-12-26

皆様こんにちは。

早いことで2019年最後のブログ更新となります。

令和元年、みなさまどんな年になりましたか?

 

さて今回は「変形地に建つ賃貸併用住宅」<後編>をご紹介いたします。

 

敷地面積約48.97坪(161.87㎡)、建蔽率70% 容積率150%の敷地、南側接道の立地になります。
施主様のご要望は以下の通りです。賃貸併用住宅 1LDK(40㎡)・2LDK(50㎡)の3戸以上 

・ビルトインガレージ1台

・吹き抜けや天井高などで開放感のある20帖以上のLDK

・アイランドキッチン

・2LDKの間取り

・外に出られる空間

・周囲の視線を感じない外干しランドリースペース

 

それでは3組の建築家の先生方によるコンペプランをご紹介いたします。

 

①Kaデザイン一級建築士事務所 山本先生のプランです。

賃貸住宅の玄関アプローチを西側に配置したことにより、メゾネットタイプの賃貸併用住宅ですが、

一体感のある外観で、すっきりとまとまっています。

見晴らしと日当たりの良い3階にオーナーのベットルームを配置し、

賃貸スペースは1・2階で完結させたことでリビングの吹き抜けを実現しました。

 

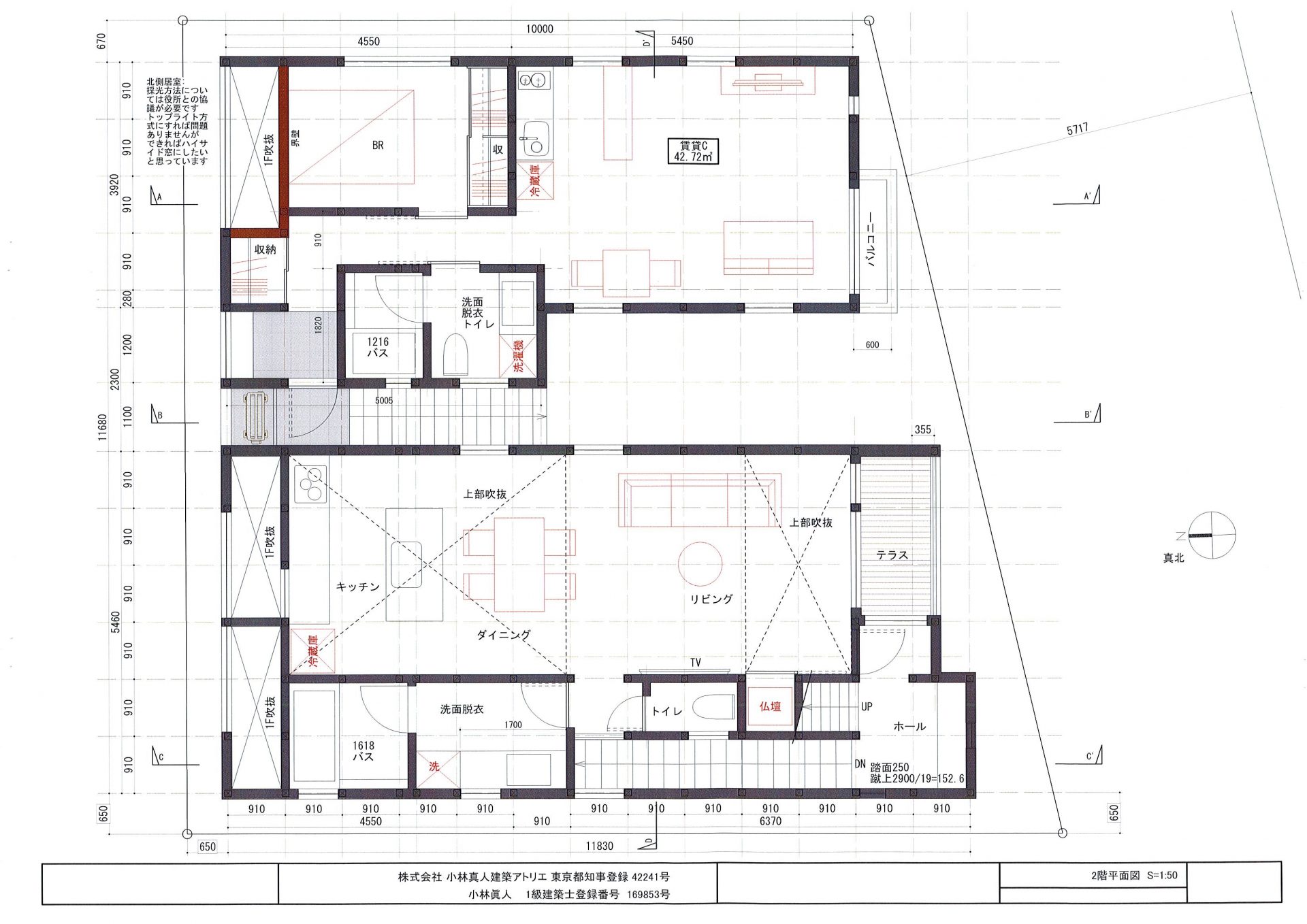
つづきては②小林真人建築アトリエ 小林先生のプランです。

全体構成を2階建てのプランになりました。

賃貸スペースも各フロア完結で賃貸Cは外部階段にするなど、建物全体をシンプルにまとめています。

またオーナー空間は2階建てですが、ロフトを設け施主様希望の天井の高いリビング空間を実現しています。

 

 

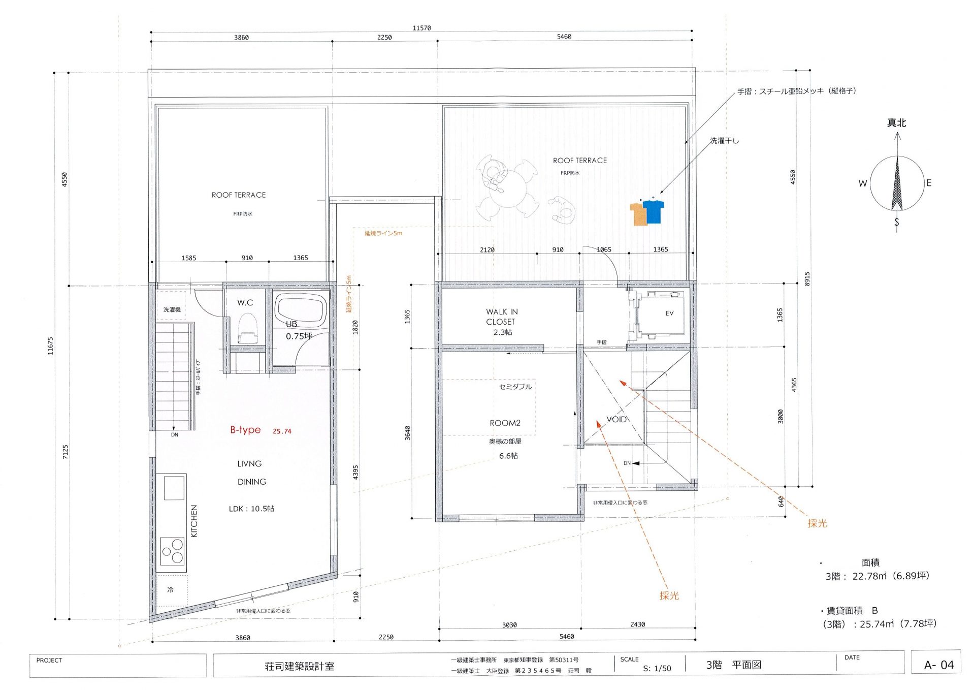
最後は③荘司建築設計室 荘司先生のプランです。

山本先生のプランと同じく3階建ての構成になりました。

特筆すべきは賃貸スペースは3戸それぞれ多階になり、住まいてによって所謂デザイナーハウスの様相になります。

敷地中央に賃貸スペースの玄関アプローチを配置したことにより、存在感のある外観になります。

 

以上、三者三様の3つのプランが出そろいました。

いかがでしたでしょうか?

 

このように建築家それぞれのプランや提案を引き出せるのがベルクハウスの建築家コンペです。
実際の建築コンペでは紹介しました図面だけでなく、模型やブログには掲載していないCGなども使った提案を受けることができ、より分かり易く、あっと驚く提案をお楽しみ頂けます。

 

ベルクハウスでお客様にとって特別な住まいづくりを進めてみてはいかがでしょうか。

気になる方は駒沢モデルハウスにご来場、またはお気軽に下記までお電話ください。

駒沢モデルハウス TEL:03-5760-6715

 

次回もお楽しみに!

 

モダンリビング特別編集
『テーラーメイドの都市邸宅 Vol.2 』は、
Amazon・有名書店でお求めいただけます。

また、誌面収録のショールーム・モデルハウスでベルクハウスの魅力を
ぜひご体感ください。

お問い合わせ

back to top