皆様こんにちは。
寒い中にも春が近づいてきているのを感じられるようになりましたが、いかがお過ごしでしょうか。
さて今回は「地下に音楽スタジオのある住まい」<後編>をお送りいたします。
お施主様のご要望は以下の通りです。
・地下にグランドピアノが置ける音楽スタジオを設けたい
・読書がしやすいリビング
・ウォールナットを使った内装
・納戸も兼ねられるシューズクローク
・将来子供が増えた時にも対応できる間取りがいい
それでは3名の建築家の先生方によるコンペプランをご紹介いたします。
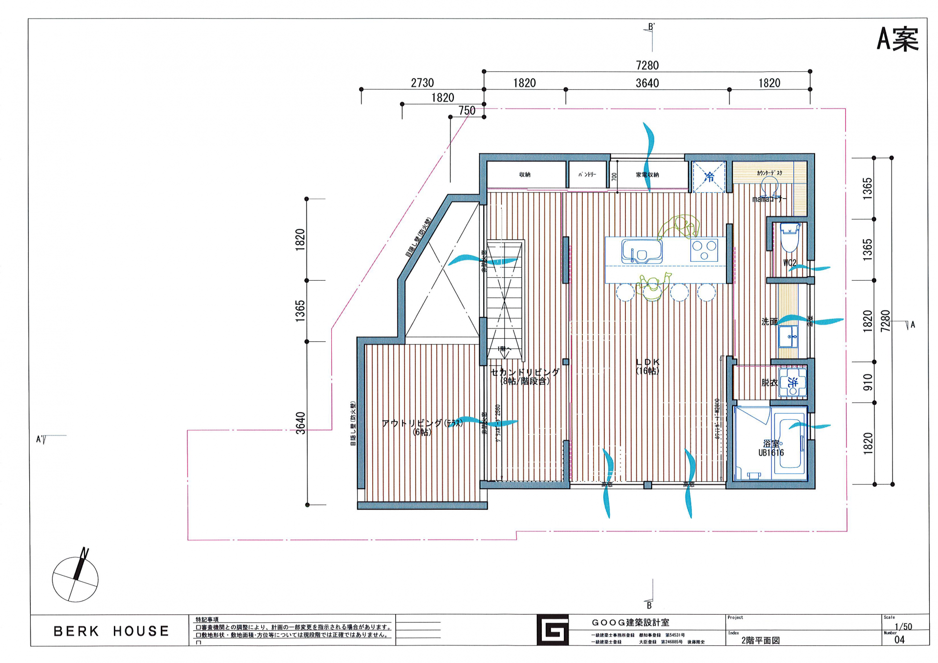
①GOOG建築設計室 後藤先生
ロフト有、無しの2つのプランをご提案くださいました。いずれの案もリビング以外にも生活の場が設けられる(読書をするなど)ように、セカンドリビング、アウトドアリビングといったスペースが考えられています。

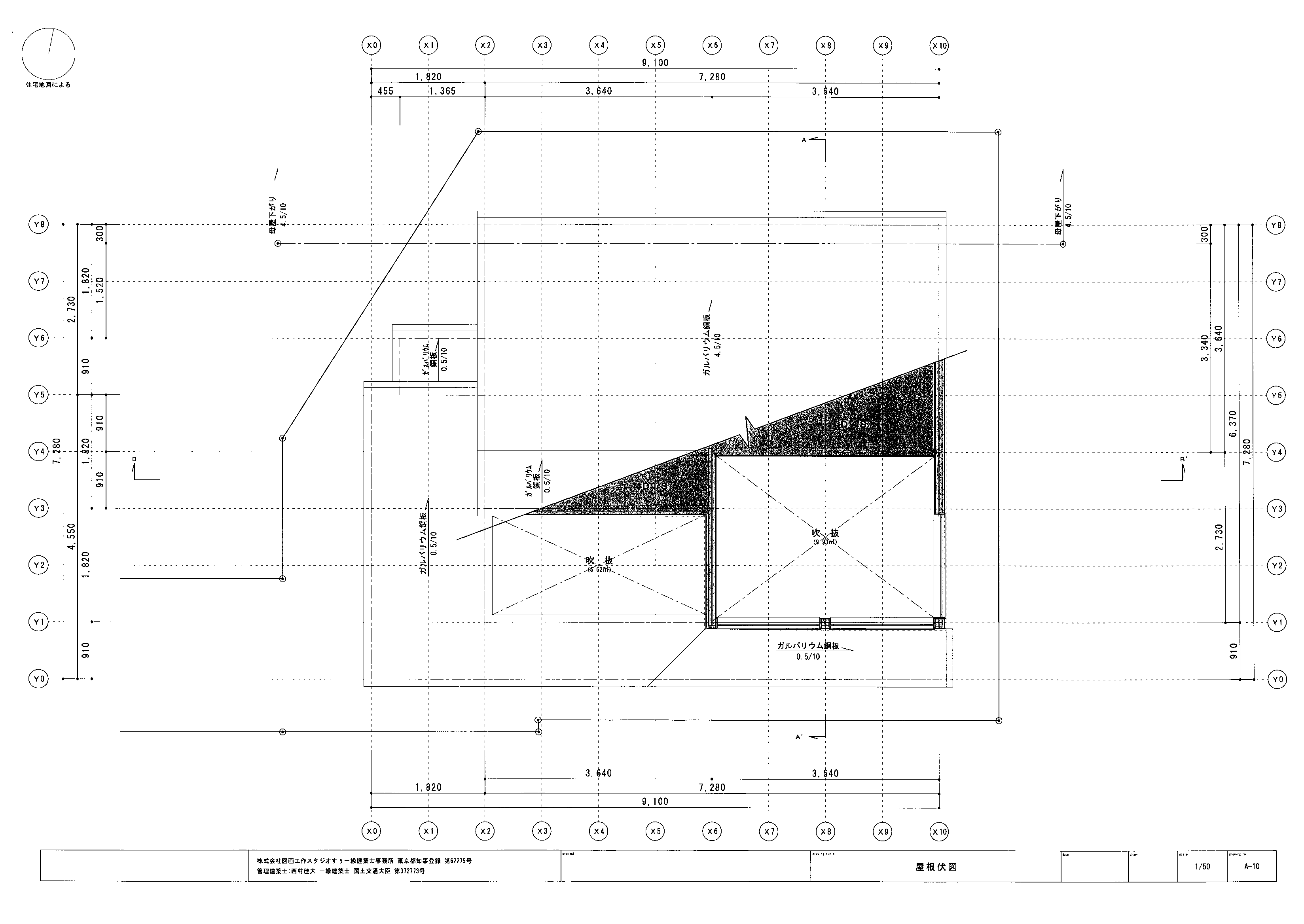
②スタジオすぅ 西村先生
地下への階段に窓を設けており、地下室へもしっかりと光が入ります。玄関にファミリー玄関を設けるなど動線に配慮しています。また廻りを部屋と壁で囲んだバルコニーは人の目線を気にせず、庇があり広さも十分なのでアウトドアリビングとしても利用できます。

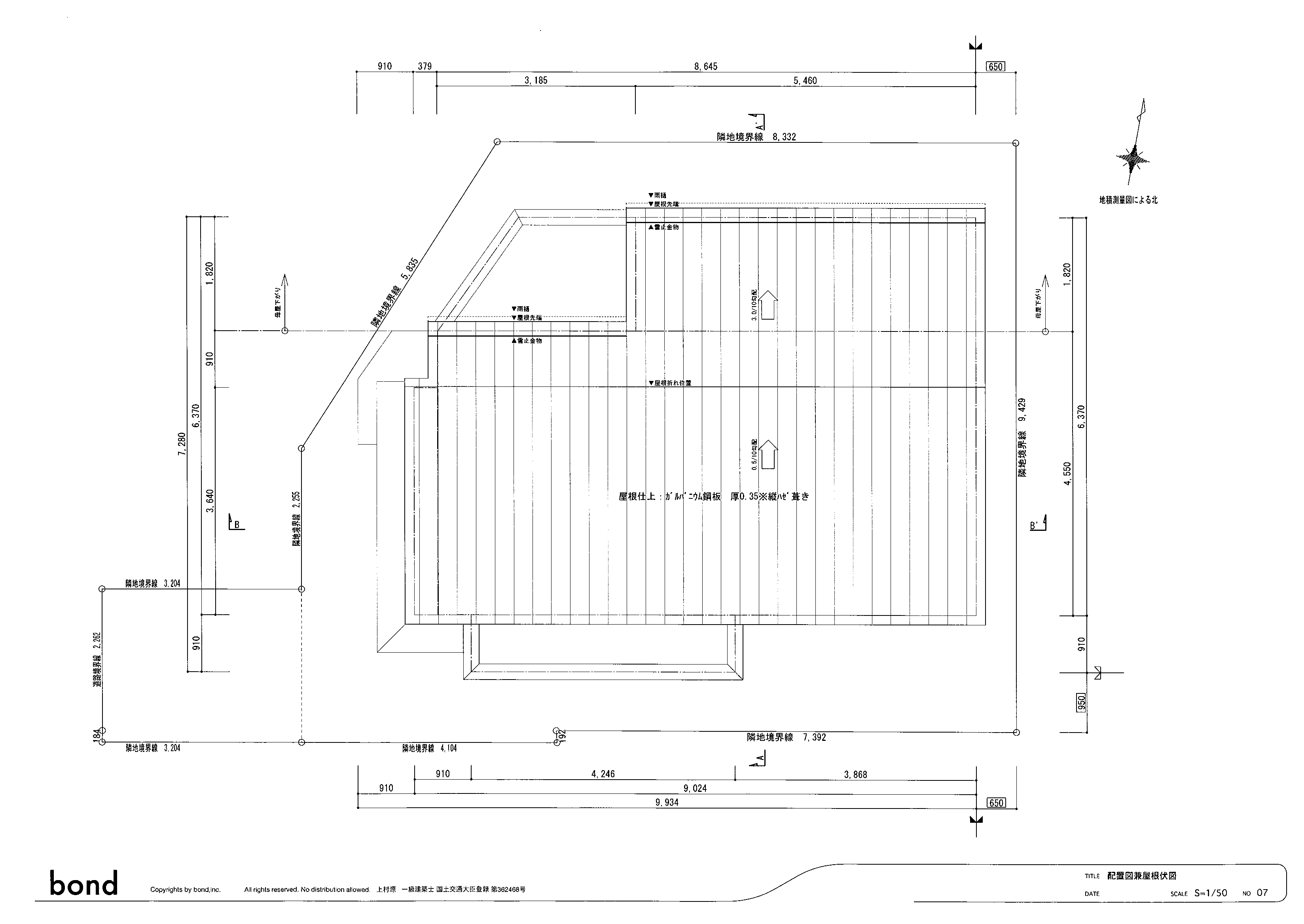
③株式会社bond 上村先生
2Fのバルコニーは壁で囲われており、プライバシーを守りながらLDKに光を取り込みます。LDKはテラスも隣接しているため景色を眺めながら読書を楽しめそうです。

以上、3つのプランが出揃いました。実際の建築コンペではこれらの図面のほかに模型も使用しながら建築家の方がプレゼンテーションを行いますのでよりイメージが膨らみます。
次回もお楽しみに!