皆様こんにちは。
このところ梅雨寒の日が続いておりますが、いかがお過ごしでしょうか。
さて、今回は先週に引き続き「プライバシーを確保した、適度な距離感のある二世帯」<後編>です。
施主様のご要望は、下記の通りです。
・プライバシー重視(隣家対策、親子間でのプライバシーも確保したい)
・夏は涼しく、冬は暖かい
・ビルトインガレージ(車2台+自転車4台、サーフボードなどが置ける広めのガレージ)
・広めの寝室(イメージ:ホテルのスイート、ソファが置けるスペース+広めのウォークインクローゼット)
・水回り(バス・洗濯機置き場)は親・子で別々
・広めのLDK(対面型カウンター付きキッチン)は1つ
・寝室×2、趣味部屋×1、和室×1(煎茶教室用)
・十分な収納スペース(ウォークインクローゼット・大容量のシューズクローゼット)
では、3名の建築家の先生のよるコンペプランをご紹介致します。
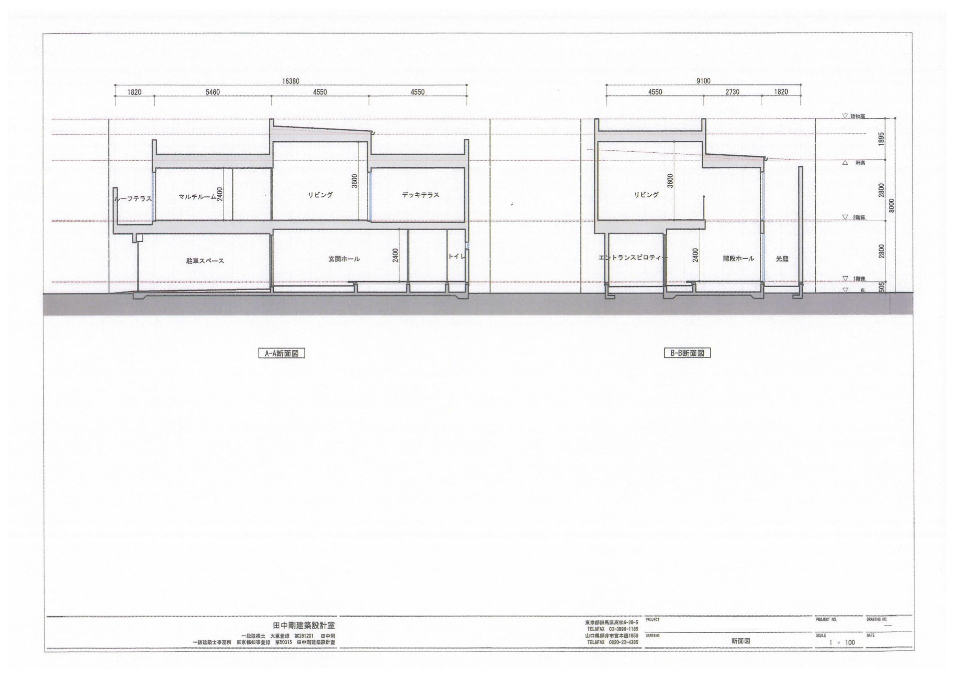
①田中剛建築設計室 田中先生のプランです。






1階のお風呂から光庭が望め、2階はルーフテラス・デッキテラスを設け、各所より採光を確保したプランですね。
ルーフテラス・デッキテラスを外側に設けることにより、隣地へのプライバシー対策を考慮しております。
リビングは、天井高3m60cm、また吹抜けと一体となり開放的な明るい空間に設計されております。
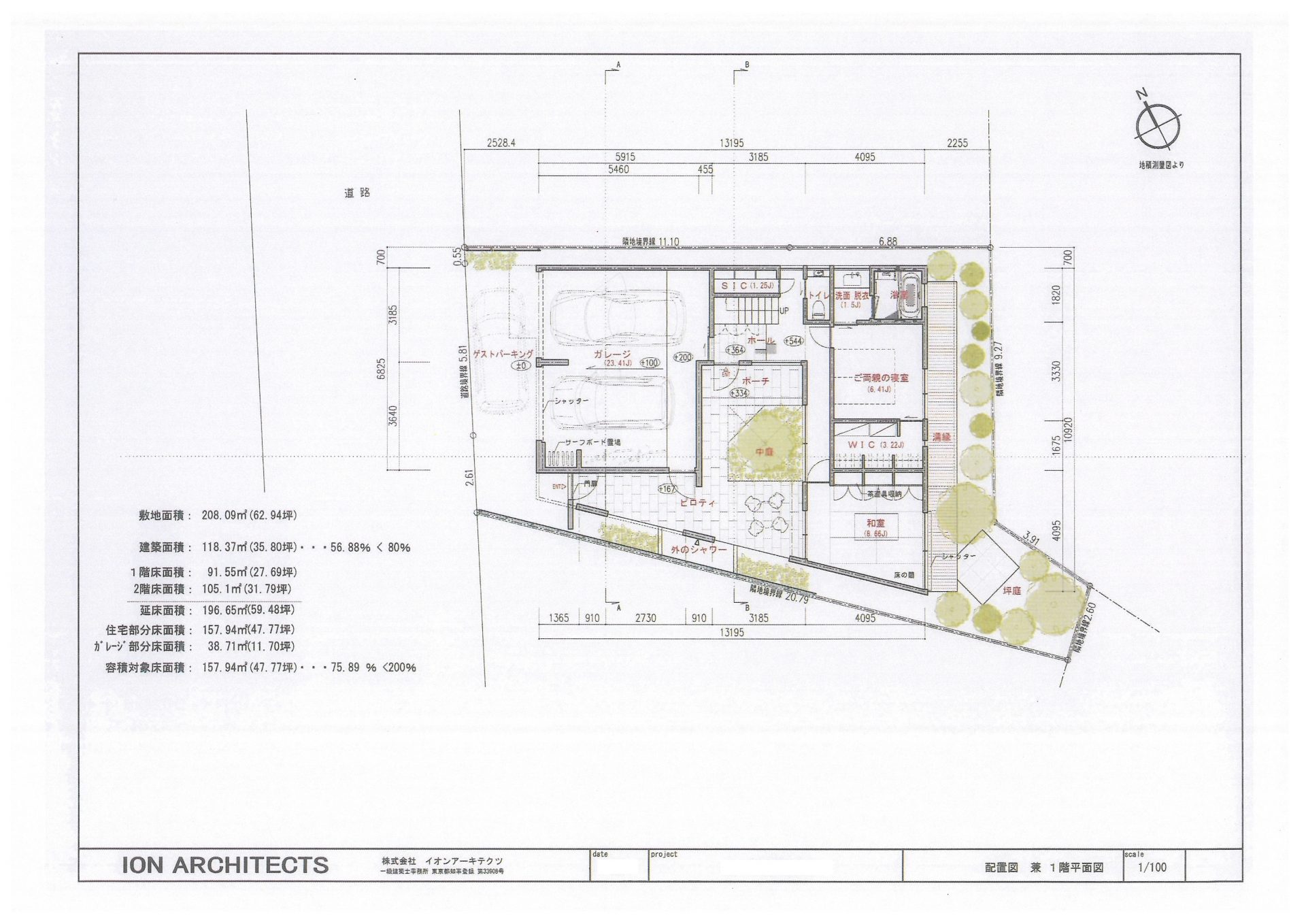
②イオンアーキテクツ設計一級建築士事務所 池田先生のプランです。











玄関前にピロティと中庭を設け、緑を感じながらお茶ができるようなスペースが素敵ですね。
中庭を見下ろせる2階のデッキテラスには、4方向全てに窓があり、各部屋のプライバシーを確保しつつ明るさを取り入れることが出来る設計になっております。
和室や寝室に繋がる濡縁も趣きを感じさせるプランです。
③アトリエ・エッジ一級建築士事務所 伏見先生のプランです。












2世帯を具現化したような、アングルを付けた二つの建物ブロックが重なる外観が印象的ですね。
また、玄関アプローチは京都の路地裏を思わせるのような空間になっており、建築家ならではのこだわりが随所に感じられます。
大きくとった中庭は、採光・通風の確保と共に防犯性の高い空間に仕上がっております。
以上、3つのコンペプランが出揃いました。
建築コンペ方式では、施主様のご要望は同じでも、このようにそれぞれ全く違うプラン・デザインを提案して頂くことができます。
皆様のお好みのプランはございましたでしょうか。
次回もお楽しみに!