皆様こんにちは。
少しずつ日脚が伸びてくる頃となりましたが、いかがお過ごしでしょうか。
さて今回は、「プライバシーを守る、角地に建つ都市住宅」<後編>をお送り致します!
今回お届けする事例は、北側間口13m、北東角地に建つ都市住宅の計画です。
角地の利点である、日当たりの良さと開放感を活かしながら、家族のプライバシーを守る空間を実現できるかがポイントです。
それでは3名の建築家によるコンペプランをご紹介致します!
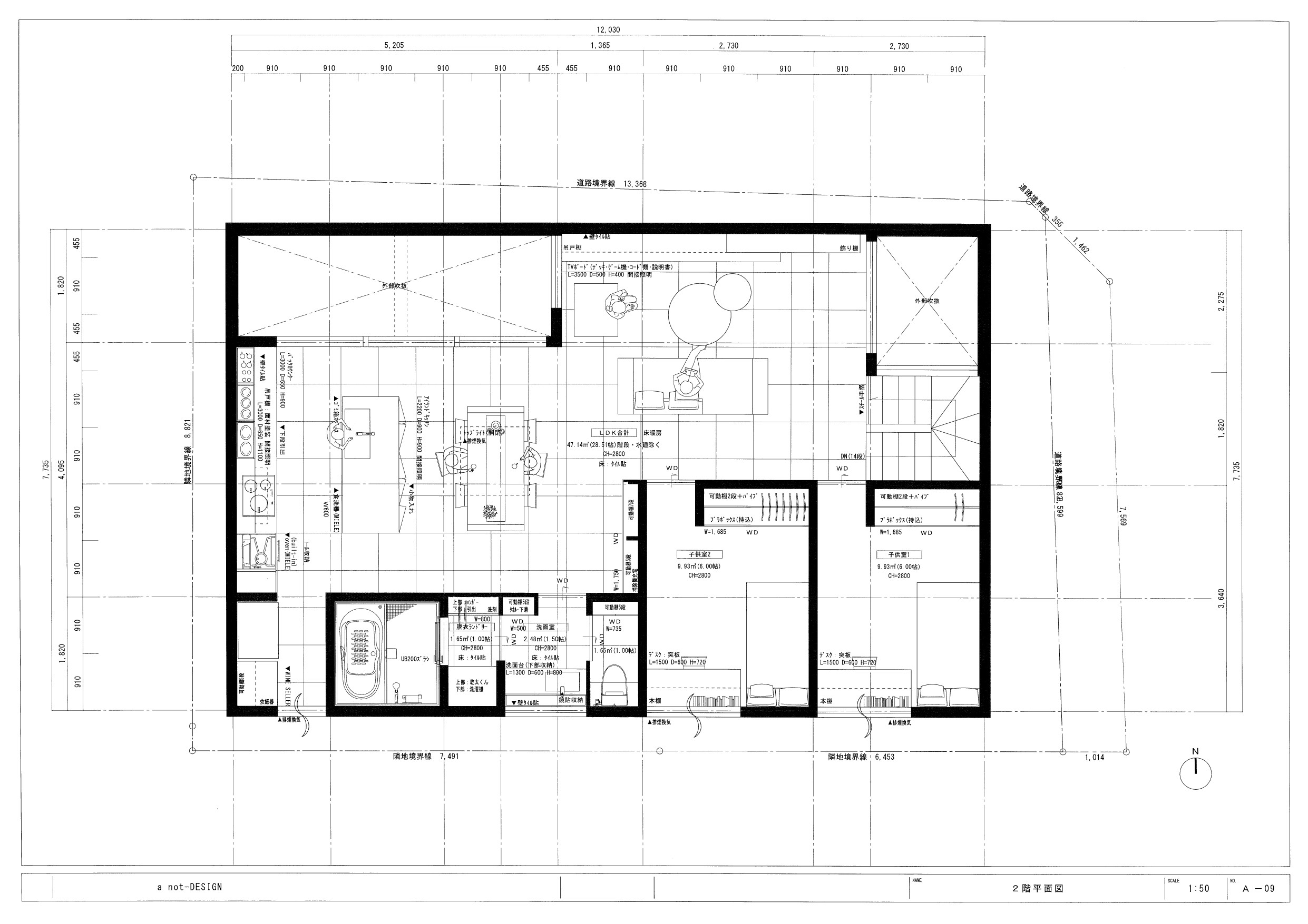
1. a not-DESIGN 松石先生・西田先生
最初はa not-DESIGNの松石先生・西田先生です。
アプローチの先のアイストップとなる植栽が、玄関を彩りながら空間に広がりをもたせ、また玄関ホール全体に光を届けます。
LDKは壁に囲まれた配置となっており、外部吹き抜けによって採光を確保しながら、道路からの視線を遮ります。角地でありながらもプライバシーの守られた空間となっています。

2.株式会社インターセクト 横川先生
続いては株式会社インターセクトの横川先生です。
壁やルーバーによって外部からの視線を遮りながら、光を取り込む3か所の「光庭」によって、建物全体を明るく開放感のある空間にしています。全ての部屋が光庭に面することで、プライバシーを守りながら、各部屋の採光や通風を確保し、快適な空間を実現しています。

3.株式会社イオンアーキテクツ 池田先生
最後は株式会社イオンアーキテクツ、池田先生です。
アプローチはパティオの役割も兼ね、シンボルツリーが出迎えてくれます。2階のLDKは目隠しルーバーで道路からの視線を遮り、家族のプライバシーを守ります。また、北側のパティオから光を取り込むことで、一日を通して明るい空間となり、窓から眺めることのできるシンボルツリーが空間を彩ります。

以上3つのプランが出揃いました!
今回も建築家のこだわりと工夫が詰まった三者三様のプランが登場しましたね。
いかがでしたでしょうか?
ご興味がございましたら是非一度駒沢展示場にお越しくださいませ。
次回もお楽しみに!