皆様こんにちは。
花の便りが聞かれる頃となりましたが、いかがお過ごしでしょうか。
本日ご紹介するコンペ事例は
東京の中心部に計画する物件「バスコートのある開放感のある住まい」<後編>です。
裕福な敷地形状ですが、高低差をもった敷地です。
道路幅4mということで、車両の入れ方などにも
ケアが必要です。
又、地面に埋まる面積が増えるとコストも上がっていきます。
総合的なバランスも考慮しなければなりません。

駐車スペースとエントランスのみ横穴式で掘っています。
メイン駐車を奥にすることで、狭い道路でも楽に駐車できるように工夫されています。
全体構成は敷地工程差を逆活用したアイディアです。
それぞれ半階づつあがっていく間取りです。
続いて
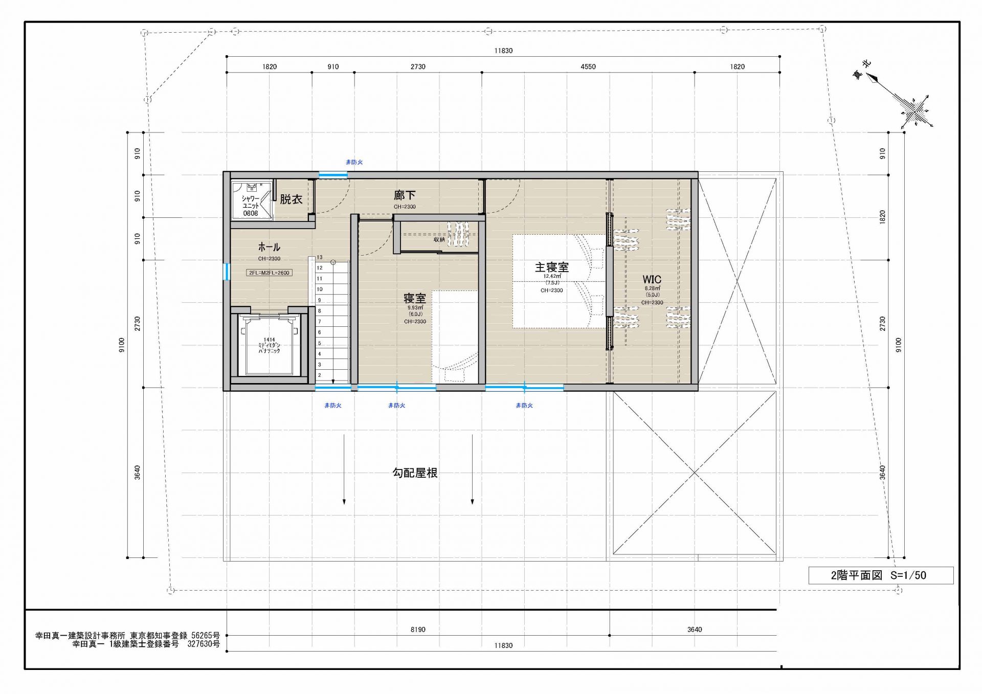
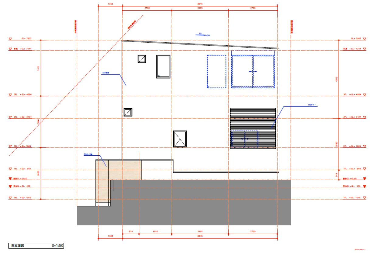
幸田先生の提案です。

こちらも基本は現況の敷地状況を活かし
極力残土の搬出量や基礎部分のコストも意識しております。
間取りの構成は気持ちい開放的なリビングと大規模テラスが特徴的です。
バスコートを備えたお風呂も魅力的ですね。
最後は
伏見先生です。

まずファサードがいいですね!
前半の先生方とは構成が違いますが、スキップフロアを解消して
1フロアずつフラット設計です。
また大きな特徴としては、外部を大きな壁で建物をラッピングし
建物内部からの景色や空間として、敷地全体を活かした提案を取り入れているところが特徴的です。
以上、3つのプランが出揃いました。
いかがでしたでしょうか。
このように建築コンペ方式では、建築家の経験を活かした三者三様のアイディアを提案して頂けます。
図面だけでなく、模型と共に提案して頂けるため、実際の家作りのイメージがしやすいと思います。
是非、次回もお楽しみに!